HOUSE RENEVATION

From this assignment we had a real renovation project for a improv client.

To capture the essence of our client, it was important to do a thorough research of him and imagine his daily routines, what kind of a person he was and ask questions to improve the renovation to their needs.

Gio Ponti was my client through out this project and I decided to imagine him in his older age, as he loved to have company, read books and own a welcoming house.

Inspiration

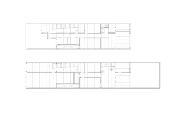
Original floorplan

Previous state of the renovation

Gio Ponti is a man that is considered the godfather of Italian design. He is a designer with natural talent for beauty in design. Gio Ponti loves talking about art, design, forms and shapes in a fun gathering of friends and fami- ly. Italian born and raised loves to travel to new places, explore new cultures and history and take active part in the family.

Gathering-Heritage-Shapes

ZONING

Moodboard for Texture

WARM HUES

  • STUDIO- Light, private

  • GARDEN- herbs, spacious

  • GUEST ROOM X 2- For his family and guests.

Renders

As for zoning, I dwelled on Gio Ponti, imagining his daily routine and figuring out how this house would suit him and his needs.

I figured out that he is very social and really likes throwing together a dinner party, get together and talk about design and art.

Him and his wife have been longing for a separate nook that they could endeavour in their hobbies, such as reading, drawing, inviting people and spend time with family.

  • HALLWAY- Bright & Wide KITCHEN - Open & Large

  • LOUNGE- Inviting, showcase

  • BATHROOM-

NATURAL ELEMENTS

Moodboard for color

Floorplan

Section

The most resistant element is not wood, is not stone, is not steel, is not glass. The most resistant element in building is art. Let’s make something very beautiful
— Gio Ponti
Previous
Previous

VÄXA

Next
Next

X CIRCUS